Nauplion

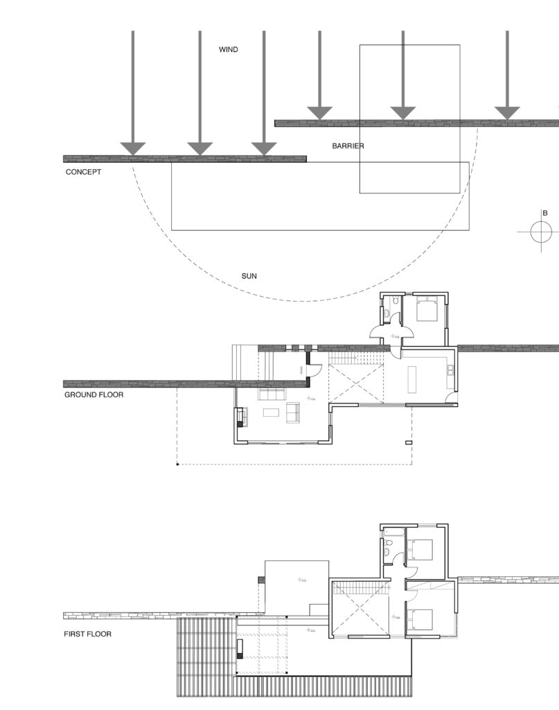
The client of this project, required a peaceful summer house, to be used in all seasons. The site was a land full of olive trees in the outskirts of the city of Nafplion, just below a mountain .In winter strong winds were forcing down from the mountain striking the land .Therefore the key to this project was to prevent the house from the wind, coming from the north side where and at the same time to enjoy the privileges of the southern sun. Two long stone walls act as a barrier between the wind and the sun, insulating at the same time the interior of the house. Designed in open plan, the ground floor serves for lounge, dining and kitchen, whereas at the north side a volume, serving as guest house, penetrates the stone wall. First floor serves for bedrooms and a large veranda.